DW-4.0LSX
产品介绍
手动双边解锁。
举升机电缆油管全隐蔽,外形美观大方。
国际标准的机械保险装置。
双保险自锁装置,操作安全简便。
采用两根钢丝绳同步连接,强制两滑台同步移动,有效防止车辆倾斜。
设有高强度精密举升托臂回转角锁定装置,防止意外发生。
上升时托臂自动锁紧,下降到地面时自动解锁。
二节螺旋举升托垫可以轻松调节高度,更容易定位汽车支撑点,适合于更多低底盘车辆
油缸端头装有节流阀,即便油管爆裂,也能确保安全。
24V高度限位行程开关有效地防止车顶损坏。
橡胶车门防撞垫作为标准配置,能有效地防止车门损伤
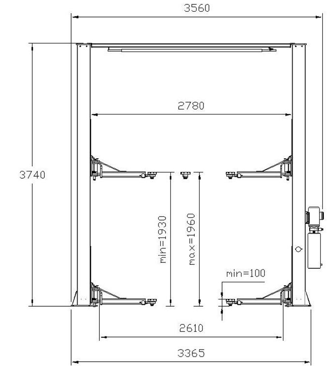
主要参数
外形尺寸


English
简体中文






