DW-4.0LSX
Bilateral unlock manually.
Lifting machine cable tubing all hidden, appearance is beautiful and easy. The international standard of mechanical safety device. Double insurance self-locking device, easy operation safety. Adopt two synchronous connection cable, compulsory two sliding table synchronous moving, effectively prevent the vehicle tilt. Has a high intensity precision lifting arm rotation Angle locking devices, to prevent the accident. Rise arm automatically lock, automatically unlock fell to the ground.
Second section can be easily adjusted spiral lifting pallet height, more easy to locate the car, is suitable for low chassis more vehicles.
End of the cylinder is equipped with throttle valve, even blowout, also can ensure safety.
24 v effectively prevent damage of the roof height limit travel switch.
The rubber door fenders as standard, can effectively prevent the door damage
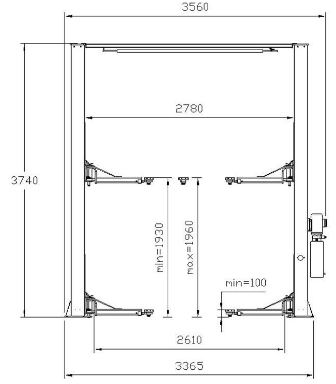
TECHNICAL DATA
DIMENSIONS


English
Chinese







